99r在线播放I91免费观看视频网站I成人黄色短片I在线成人小视频Iav电影免费在线播放I在线观看免费91I麻豆久久一区二区I99九九视频

您好! 歡迎來到上海滬工起重機械有限公司!

熱門搜索:

輕小型起重機

首頁 > 產品中心 > 輕小型起重機
歐標電動雙梁橋式起重機
歐標電動雙梁橋式起重機

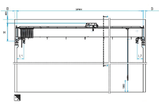
產品介紹

歐標電動雙梁橋式起重機設計緊湊,自重輕,輪壓小,載荷分布均勻,可以讓客戶節省可觀的投資,并大大提高有效的工作空間。它不但安全可靠,并且在設計上符合人體工程學,操作簡便,安全舒適,讓物料輸送更便捷高效。有很多配量選項可供客戶選擇,如起升變頻、葫雙、遙控控制等,以滿足各種工況或物流輸送的需求。
 
歐標電動雙梁橋式起重機
 
C 噸位120噸、跨度30米
 
.起升重量大、凈空低、輪壓小運行平穩
 
●定位快捷、 工程學設計、操作舒適
 
(經過嚴格測試、使用壽命長、維護量小
 
(安全可靠、提高生產效率、創造更大收益

 


上一個:輕型門吊
銷售咨詢:021- 61473468 021-61474468 手 機:   手機:15921513569

傳真:021-33250445 E-mail:2638202261@qq.com 地址:上海市隆昌路40弄8號  備案號:滬ICP備15007928號-3
?

在線咨詢

在線咨詢真誠為您提供專業解答服務

咨詢熱線

5*8小時服務熱線 400-966-5869

24小時服務熱線 15921513569

13651773046

?

微信咨詢

二維碼掃一掃添加微信
返回頂部